
Teresa Sargeant
Key Points
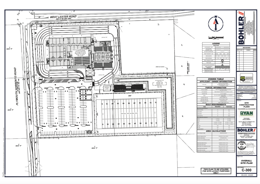
- A K-12 charter school is proposed as a 91,163 sq. ft. two-story building on nine acres at the Plymouth Sorrento Road/West Lester Road intersection.
- A city engineer warned that the existing drainage system is insufficient and may worsen with the new school, prompting design reassessment.
- The charter school site plan includes amenities such as a football field and a tot lot to support student activities and recreation.
The Development Review Committee (DRC) on Wednesday reviewed a site construction plan for a proposed K-12 charter school for the corner of Plymouth Sorrento Road and West Lester Road, near the Wekiva Parkway.
Prepared by Bohler Engineering, the site plan shows that the charter school project would occupy nine acres and feature a two-story building totaling 91,163 square feet. The first floor plan comprises 53,719 square feet, while the second floor is for 37,444 square feet. Amenities include a football/athletics field and a tot lot.

The DRC evaluates development proposals for potential recommendation to the Apopka City Council. The discussion at Wednesday’s meeting did not include a timetable for when the charter school project may go before the council.
Key issues raised during the DRC meeting included parking requirements, biking facilities, and stormwater management.
During the review, senior city engineer Dale Smith warned that the drainage system the charter school intends to use is already insufficient for current stormwater levels, and the new campus could worsen the problem.
Smith recommended to Ryan Hileman, a civil engineer for Bohler Engineering, that the project team may need to alter how the school site connects to the nearby drainage pipe and redo some calculations to ensure the system is not overwhelmed once the facility is built.
Hileman said he would meet with Smith to discuss the issue further.
“We can further discuss this in detail at a later date, but our design was meant to capture everything that we had in discharge at that particular rate,” Hileman said.
The charter school plan currently includes 198 permanent parking spaces, with additional spaces reserved for events. City staff requested the school’s maximum design capacity to verify code-required parking. Hileman stated he would submit a parking analysis and a narrative addressing the issue.
City staff noted that the land development code sets different standards for short-term and long-term bicycle parking and instructed the project team to follow whichever requirement yields the greater number of spaces.
According to city planner Bobby Howell, the new charter school is exempt from public hearings under state statute because charter schools are treated the same as traditional public schools.
The project developer is Tampa-based Ryan Companies. The project owner is Scott Woodrey, president of Red Apple Development, a Fort Lauderdale-based charter school developer.
According to Red Apple Development’s website, the company has constructed 75 facilities totaling nearly 5 million square feet across Florida, Michigan, North Carolina, South Carolina, Georgia and Louisiana.
“We collaborate closely with clients to create an experience that is both accommodating and efficient and yields a facility that meets the needs of students, families and administration,” the company’s website states.

Suggested Articles
No related articles found.


